Our Office is Located at:
404 W Powell Lane, Suite 202, Austin, TX 78753
Phone number (512) 252-9900

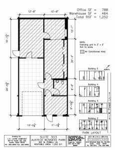
Austech Business Park – A303

501 West Powell Lane, Suite 303 Austin, Texas 78753

501 West Powell Lane, Suite 303 Austin, Texas 78753

Description:

Great location in center of Austin with easy access for rapid N-S movement on IH35 and E-W along 183.



Property Type: Industrial/Warehouse

Rental Rate: $1,109

Lease Duration: 1 year

Space Available (Sqft): 1252

No. Drive In / Grade-Level Doors: 1

A/C Description: Three window units for office space

Parking Description: Limited parking.

Contact Information: Eric Layne 512-252-9900